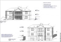
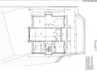
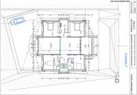
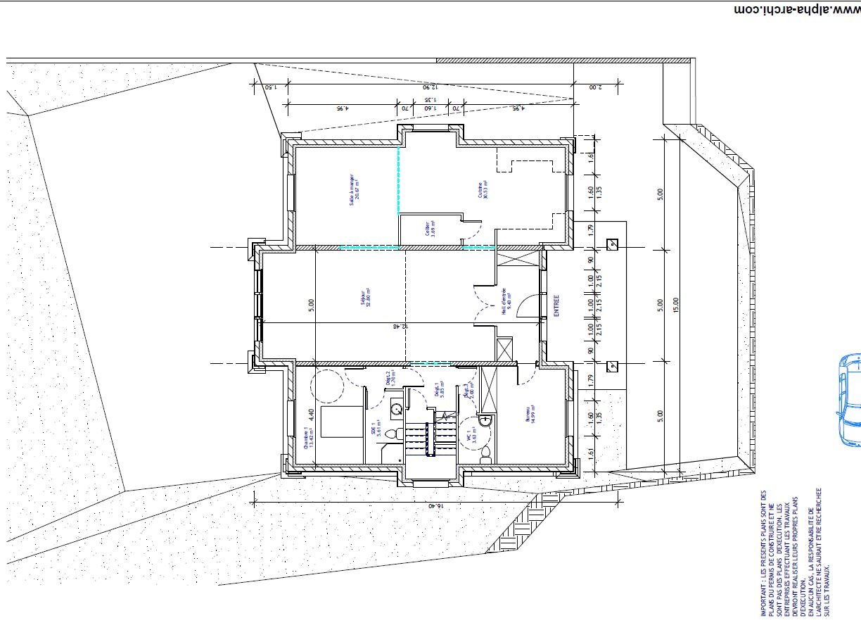
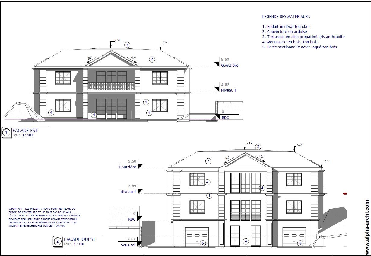
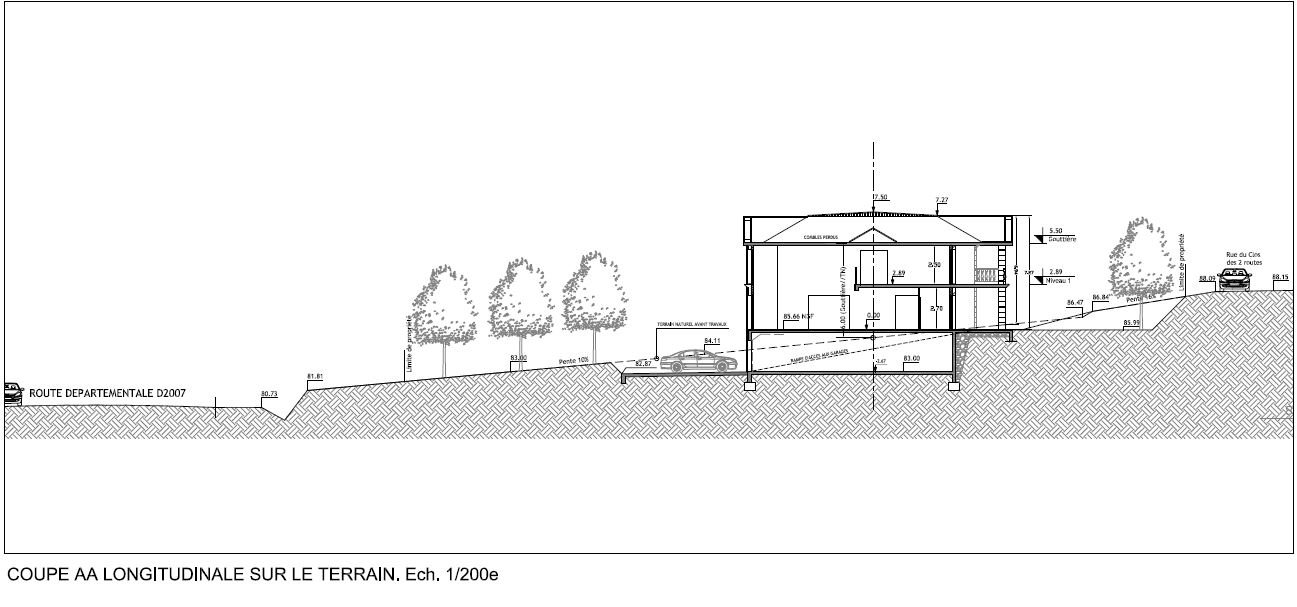
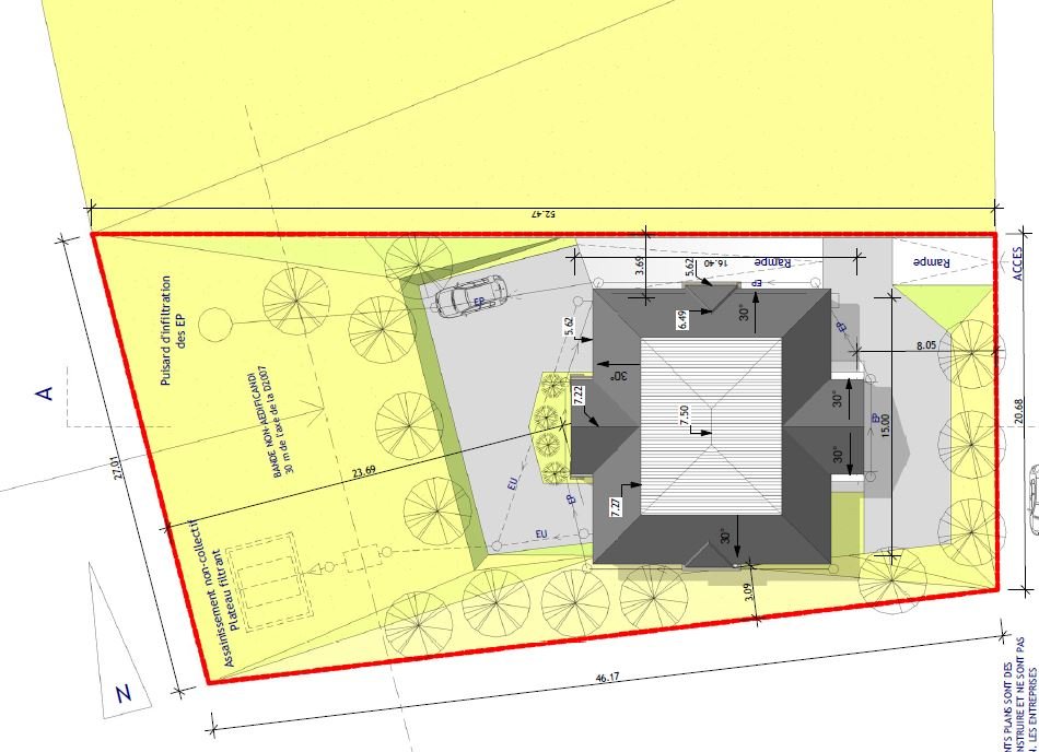
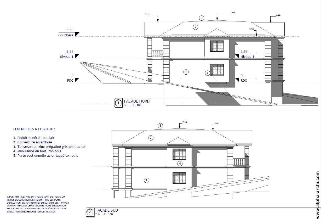
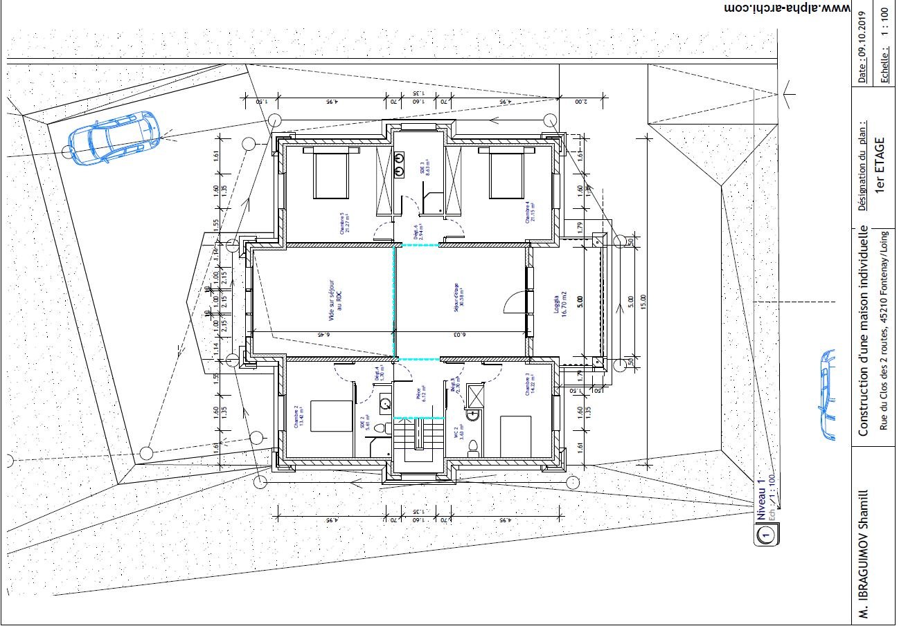
Beau Terrain constructible situé à Fontenay sur Loing proche des commerces de Ferrières de la Gare SNCF et des Axes Routiers . Prévu à la base pour un très beau Projet d'habitation, vous pourrez soit continuer celui ci ou demander un permis midificatif afin de l'adapter au votre. la base entamée étant saine et simple à poursuivre ou modifier. Le Terrain est déja Viabilisé (Eau, Electricité sur place + Etude du Sol et d'Assainissement réalisée ). Le Terrain dispose d'un Abris jardin et la construction du Mur de Façade d'Entrée est déja réalisé comme prévu dans le plan. Vous Bénéficierez également d'une Fondation réalisée dans les règles ainsi que les premières séparations en parpaing du niveau 0 de la construction prévue ( garage plusieurs emplacements et espaces de loisirs selon Plan réalisé par architectes). L'ensemble : Permis,Plans,photos... sera mis à votre disposition sur demande. Très belle affaire à saisir pour votre projet d'habitation rincipale ou d'investissement à faible coût de départ il ne vous restera qu'à poursuivre la construction et aménager le terrain à votre guise N'hésitez pas contactez moi au plus vite . Réf. 23041 Prix TTC et Honoraires à charge vendeur TTC Les informations sur les risques auxquels ce bien est exposé sont disponibles sur le site Géorisques : www. georisques. gouv. fr Information et visites : David ARNAUD - 07 61 22 85 58 - Ville du greffe : AGENT COMMERCIAL EI RSAC ORLEANS 484 766 563 La présente annonce immobilière a été rédigée sous l'entière responsabilité de David ARNAUD, mandataire indépendant pour NAOS immobilier Réf. 23041 Prix TTC et Honoraires à charge vendeur TTC Les informations sur les risques auxquels ce bien est exposé sont disponibles sur le site Géorisques : www. georisques. gouv. fr Réf. 23041 Information et visites : David ARNAUD - 07 61 22 85 58 - Ville du greffe : AGENT COMMERCIAL EI RSAC ORLEANS 484 766 563 La présente annonce immobilière a été rédigée sous l'entière responsabilité de David ARNAUD, mandataire indépendant pour NAOS immobilier

07 61 22 85 58