INVESTISSEMENT LOCATIF – ORMOY - Résidence Cap West "Ormoy" - 7.69% de rentabilité.

86 000 €

Localisation

Ville: 91540 ORMOY

Descriptif de l'annonce

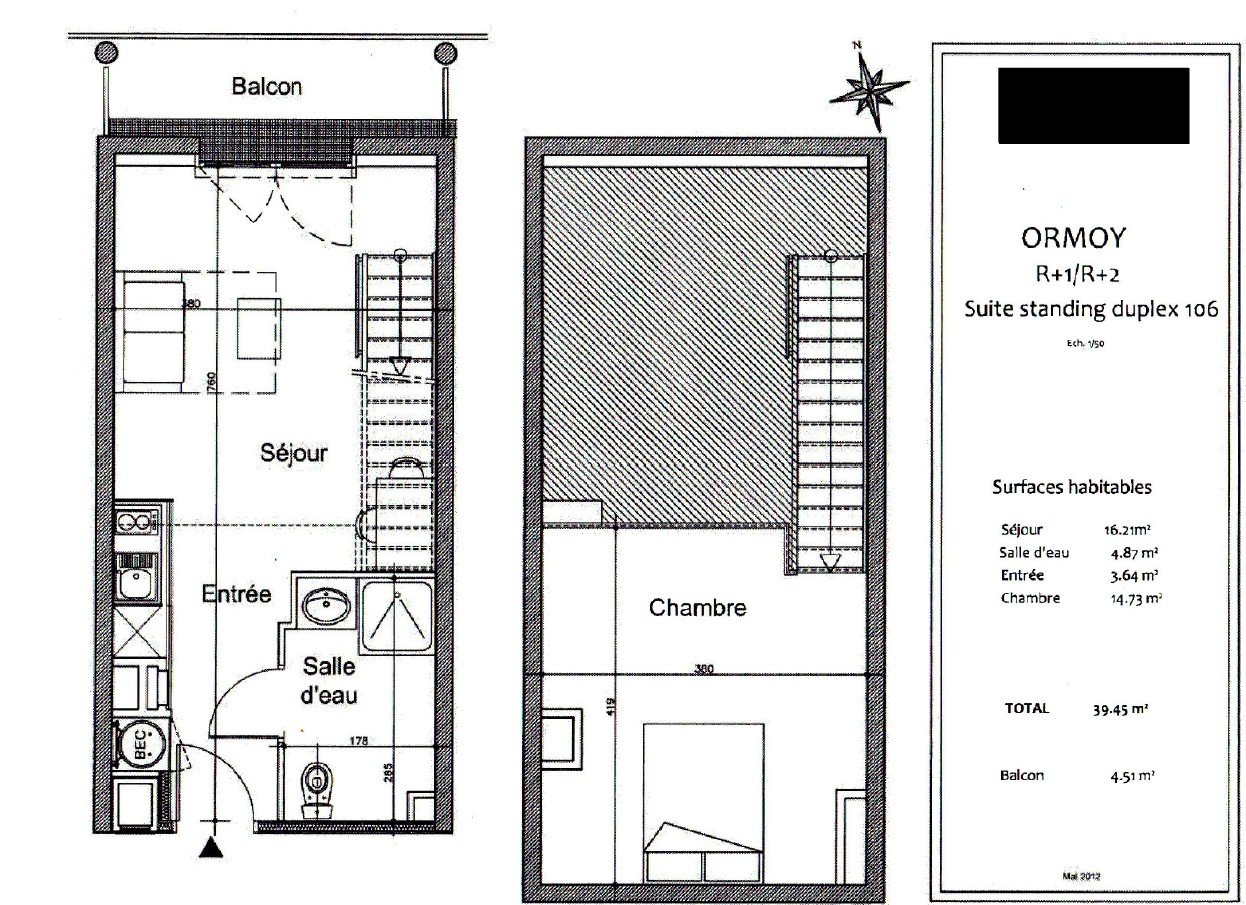
  • Surface : 37m²

Réalisez un investissement locatif sécurisé en résidence affaires sans les contraintes de gestion : le produit idéal pour vous constituer un patrimoine immobilier tout en bénéficiant d'une rentabilité sécurisée par des loyers stables, dès l'acquisition. • Loyer annuel HT : 6 610 € • Rentabilité : 7.69 % • Gestionnaire : Cap West Vous bénéficiez du statut fiscal LMNP amortissable, permettant une exonération d'impôt sur vos revenus locatifs. Le bien est exploité par un gestionnaire professionnel (Cap West), engagé par un bail commercial, vous assurant le versement des loyers dès l'acquisition, que l'appartement soit loué ou non. Description du bien : Cet appartement T2 duplex situé aux 1er et 2eme étages offre un agencement optimisé et agréable, avec une entrée dotée de placards et kitchenette, un séjour, une salle d'eau avec wc, un escalier intérieur menant à une chambre en mezzanine, un balcon à jouissance privative ainsi qu'un stationnement extérieur. À propos de la résidence : La résidence Cap West Ormoy est une résidence affaires idéalement située à Ormoy, dans l'Essonne, à proximité de l'autoroute A6, de la gare de Mennecy (ligne D), et à quelques minutes des commerces, dans un environnement calme et arboré, ce qui constitue un atout majeur. Elle se compose de 49 logements en copropriété, répartis entre studios et duplex, et propose des hébergements meublés avec prestations para-hôtelières adaptées à une clientèle de professionnels en déplacement ou de long séjour. L'établissement propose un ensemble de services complets : réception, accès sécurisé, salle de sport, laverie, fibre internet, télévision, parking voitures et vélos, accès PMR et espaces communs entretenus. À propos du gestionnaire occupant : Cap West est un gestionnaire spécialisé dans les résidences de tourisme d'affaires, exploitant plusieurs établissements en Île-de-France et en régions. Il propose une offre adaptée aux séjours professionnels, avec une gestion locative fiable et des prestations confortables et standardisées. Le coin du LMNP - Grégoire Déporte agent basé à NEUILLY SUR SEINE - 01 84 78 46 50 - Plus d'informations sur info@lecoindulmnp.fr réf. 21827 Bien soumis au statut juridique de la Copropriété. Charges annuelles de copropriété (Montant moyen annuel quote-part du budget prévisionnel vendeur) : 1 250,64 €. Pas de procédure en cours. Prix TTC et Honoraires à charge vendeur TTC

Caractéristiques intérieur et extérieur

  • 2 pièces
  • 1 chambre

Etiquettes énergies

Diagnostic de performance énergétique (DPE) (kWhep /m2 .an) :

162

Émission de gaz à effet de serre (GES) (Kg CO2 /m2 .an) :

15
photo de l'annonce I-3555177 Appartement
photo de l'annonce I-3555177 Appartement

Informations sur l'annonceur

Sextant France
Contacter Grégoire Déporte

téléphone 01 84 78 46 50

Voir toutes les annonces de ce pro

Contacter l'annonceur par e-mail

Partager cette annonce

Envoyer à un ami    Partager sur Facebook    Partager sur Twitter