Réf. I-3553565 Annonce déposée par un professionnel le 05 Février 2024 et modifiée le 20 Décembre 2025

INVESTISSEMENT LOCATIF – VERRIERES EN ANJOU – Résidence Affaires Cap West Angers Pellouailles – 6,78 % de rentabilité

82 000 €

Localisation

Ville: 49112 PELLOUAILLES LES VIGNES

Descriptif de l'annonce

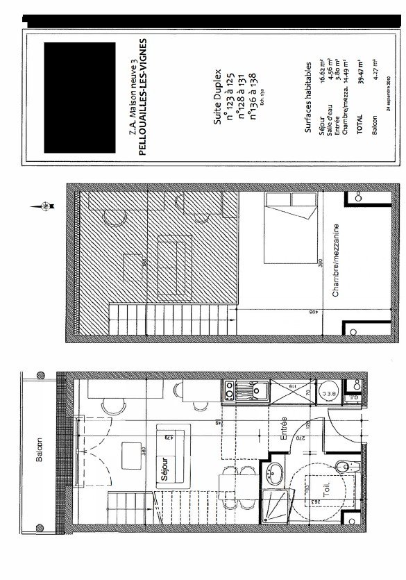
  • Surface : 40m²

Réalisez un investissement locatif sécurisé en résidence de services affaires sans souci de gestion : le produit idéal pour vous constituer un patrimoine immobilier tout en bénéficiant d'une rentabilité sécurisée par des loyers stables, dès l'acquisition. • Loyer annuel HT : 5 560 € • Rentabilité : 6,78 % • Gestionnaire : Cap West Vous bénéficiez du statut fiscal LMNP amortissable, permettant une exonération d'impôt sur vos revenus locatifs. Le bien est exploité par un gestionnaire professionnel (Cap West), engagé par un bail commercial, vous assurant le versement des loyers dès l'acquisition, que le logement soit loué ou non. Description du bien : Cet appartement T2 en duplex situé au 1er étage offre une disposition optimisée et agréable : au niveau 1 : entrée avec placards et kitchenette, salle d'eau avec wc, séjour, escalier d'accès au niveau 2 : chambre en mezzanine, jouissance privative et exclusive d'un balcon. Un stationnement situé à l'extérieur complète le bien. À propos de la résidence : La résidence Cap West Angers Pellouailles est une résidence d'affaires, idéalement située à Verrières-en-Anjou (Pellouailles-les-Vignes), à environ 11 km du centre d'Angers, à proximité des axes routiers (A11, RN323) et de transports, facilitant les déplacements professionnels et touristiques. Elle accueille une clientèle d'affaires et propose des hébergements meublés avec services para-hôteliers. Son emplacement proche de commerces, zones d'activité et pôles d'intérêt renforce son attractivité. L'établissement propose un ensemble de services : accueil, connexion Wi-Fi, blanchisserie, salle de remise en forme, sécurité et parking extérieur sécurisé. La copropriété comprend environ 90 logements. A propos du gestionnaire occupant : Cap West, filiale du groupe West Finance, gère plus de 40 résidences de tourisme et d'affaires en France, avec plus de 25 ans d'expérience, bénéficiant d'une expertise reconnue dans le secteur des résidences de services. Le coin du LMNP - Grégoire Déporte agent basé à NEUILLY SUR SEINE - 01 84 78 46 50 - Plus d'informations sur info@lecoindulmnp.fr réf. 22320 Bien soumis au statut juridique de la Copropriété. Charges annuelles de copropriété (Montant moyen annuel quote-part du budget prévisionnel vendeur) : 922 €. Pas de procédure en cours. Honoraires à la charge du vendeur

Caractéristiques intérieur et extérieur

  • 2 pièces
  • 1 chambre

Etiquettes énergies

Diagnostic de performance énergétique (DPE) (kWhep /m2 .an) :

179

Émission de gaz à effet de serre (GES) (Kg CO2 /m2 .an) :

16
photo de l'annonce I-3553565 Appartement
photo de l'annonce I-3553565 Appartement

Informations sur l'annonceur

Sextant France
Contacter Grégoire Déporte

téléphone 01 84 78 46 50

Voir toutes les annonces de ce pro

Contacter l'annonceur par e-mail

Partager cette annonce

Envoyer à un ami    Partager sur Facebook    Partager sur Twitter