INVESTISSEMENT LOCATIF – Pornic – Résidence Tourisme Cap West – 7,65 % de rentabilité

82 000 €

Localisation

Ville: 44210 PORNIC

Descriptif de l'annonce

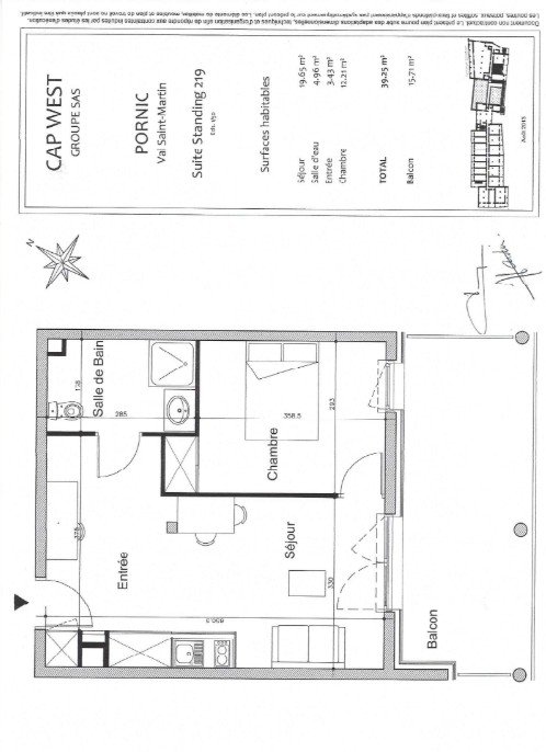
  • Surface : 39m²

Réalisez un investissement locatif sécurisé en résidence de tourisme sans souci de gestion : le produit idéal pour vous constituer un patrimoine immobilier tout en bénéficiant d'une rentabilité sécurisée par des loyers stables, dès l'acquisition. • Loyer annuel HT : 6 276 € • Rentabilité : 7,65 % • Gestionnaire : Cap West Vous bénéficiez du statut fiscal LMNP amortissable, permettant une exonération d'impôt sur vos revenus locatifs. Le bien est exploité par un gestionnaire professionnel (Cap West), engagé par un bail commercial, vous assurant le versement des loyers dès l'acquisition, que le logement soit loué ou non. Description du bien : Cet appartement T2 situé au 2eme étage offre une disposition fonctionnelle et optimisée : comprenant une entrée avec placards, un séjour avec kitchenette, une chambre avec placard, W.C., salle de bains et un balcon, ainsi qu'un parking intérieur. À propos de la résidence : La résidence Cap West est une résidence de tourisme, idéalement située à Pornic, à proximité des commerces, du port et des plages de la Côte de Jade. Elle bénéficie d'une adresse stratégique : à 3 km de la gare SNCF de Pornic et à environ 46 km de l'aéroport de Nantes Atlantique, ce qui constitue un atout majeur pour l'accessibilité. L'établissement propose des hébergements meublés avec services para-hôteliers. La résidence offre des prestations complètes : parking intérieur, balcon privatif et équipements modernes. Elle dispose d'une copropriété bien structurée. A propos du gestionnaire occupant : Cap West est une société de gestion spécialisée dans l'exploitation de résidences de tourisme, implantée depuis plus de 25 ans, et reconnue pour son savoir-faire et sa solidité dans l'Ouest de la France. Les diagnostics sont en cours de réalisation. Le coin du LMNP - Marine Faure agent basé à NEUILLY SUR SEINE - 01 84 78 46 50 - Plus d'informations sur info@lecoindulmnp.fr réf. 26179 Bien soumis au statut juridique de la Copropriété. Charges annuelles de copropriété (Montant moyen annuel quote-part du budget prévisionnel vendeur) : 1 565 €. Pas de procédure en cours. Prix TTC et Honoraires à charge vendeur TTC

Caractéristiques intérieur et extérieur

  • 2 pièces
  • 1 chambre
  • 1 salle de bain
photo de l'annonce I-3552958 Appartement
photo de l'annonce I-3552958 Appartement

Informations sur l'annonceur

Sextant France
Contacter Marine Faure

téléphone 01 84 78 46 50

Voir toutes les annonces de ce pro

Contacter l'annonceur par e-mail

Partager cette annonce

Envoyer à un ami    Partager sur Facebook    Partager sur Twitter