INVESTISSEMENT LOCATIF – CHARTRES – Résidence Affaires Cap West – 8% de rentabilité

75 000 €

Localisation

Ville: 28000 CHARTRES

Descriptif de l'annonce

  • Surface : 40m²

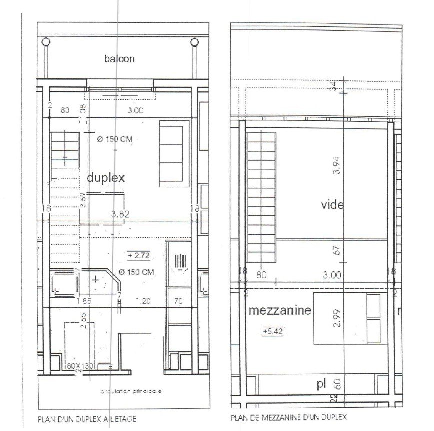
Réalisez un investissement locatif sécurisé en résidence de services sans souci de gestion : le produit idéal pour vous constituer un patrimoine immobilier tout en bénéficiant d'une rentabilité sécurisée par des loyers stables, dès l'acquisition. • Loyer annuel HT : 5 998,16 € • Rentabilité : 8% • Gestionnaire : Cap West Vous bénéficiez du statut fiscal LMNP amortissable, permettant une exonération d'impôt sur vos revenus locatifs. Le bien est exploité par un gestionnaire professionnel (Cap West), engagé par un bail commercial, vous assurant le versement des loyers dès l'acquisition, que le logement soit loué ou non. Description du bien : Cet appartement T2 en duplex situé au rez-de-chaussée offre une disposition fonctionnelle et agréable : une entrée avec coin cuisine, une salle d'eau avec WC, un séjour, une mezzanine. Une place de parking complète ce bien. À propos de la résidence : La résidence Cap West Chartres est une résidence Affaires, idéalement située à Chartres, à proximité du centre-ville, dans la ZAC du Parc d'Archevilliers à environ 6 km de la gare de Chartres et à proximité des grands axes (autoroute A11) et de l'aéroport de Paris-Orly (environ 80 km). Son emplacement lui confère une forte attractivité. L'établissement propose un ensemble de services complets : parking voitures et vélos, vidéosurveillance, accès PMR, laverie, salle de sport, internet haut débit. La copropriété comprend plusieurs dizaines de logements meublés et équipés. À propos du gestionnaire occupant : Cap West est un gestionnaire spécialisé dans les résidences affaires, filiale du groupe West Finance, fondée en 2004, présente dans plusieurs régions de France et reconnue pour son expertise dans l'exploitation para-hôtelière. Le coin du LMNP - Grégoire Déporte agent basé à NEUILLY SUR SEINE - 01 84 78 46 50 - Plus d'informations sur info@lecoindulmnp.fr réf. 26117 Bien soumis au statut juridique de la Copropriété. Charges annuelles de copropriété (Montant moyen annuel quote-part du budget prévisionnel vendeur) : 1 479 €. Pas de procédure en cours. Prix TTC et Honoraires à charge vendeur TTC

Caractéristiques intérieur et extérieur

  • 2 pièces
  • 1 chambre

Etiquettes énergies

Diagnostic de performance énergétique (DPE) (kWhep /m2 .an) :

196

Émission de gaz à effet de serre (GES) (Kg CO2 /m2 .an) :

20
photo de l'annonce I-3554036 Appartement
photo de l'annonce I-3554036 Appartement
photo de l'annonce I-3554036 Appartement
photo de l'annonce I-3554036 Appartement
photo de l'annonce I-3554036 Appartement
photo de l'annonce I-3554036 Appartement
photo de l'annonce I-3554036 Appartement

Informations sur l'annonceur

Sextant France
Contacter Grégoire Déporte

téléphone 01 84 78 46 50

Voir toutes les annonces de ce pro

Contacter l'annonceur par e-mail

Partager cette annonce

Envoyer à un ami    Partager sur Facebook    Partager sur Twitter