Nice – Quartier du Port : Résidence neuve dans un quartier dynamique et recherché

390 000 €

Localisation

Ville: 06300 NICE

Descriptif de l'annonce

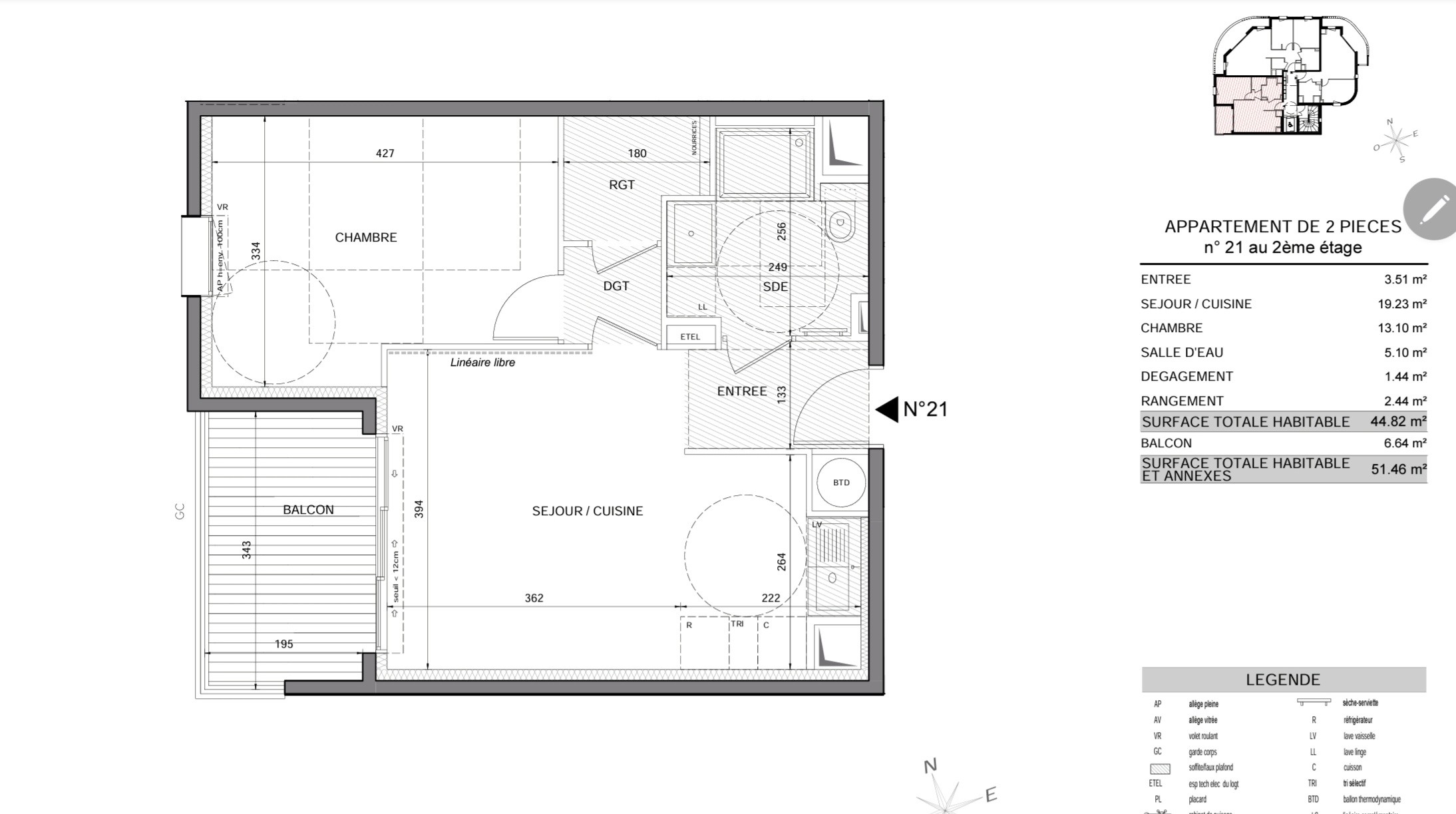
  • Surface : 45m²

À quelques minutes à pied du port de Nice, découvrez cette nouvelle résidence confidentielle de seulement 12 appartements, du 2 au 4 pièces, située dans l'un des quartiers les plus recherchés et en développement de la ville. Son architecture contemporaine aux lignes courbes s'intègre parfaitement dans son environnement urbain et vivant. Les appartements bénéficient d'une belle luminosité avec, pour la plupart, une double voire triple exposition, des séjours d'angle ensoleillés, cuisines ouvertes, et de beaux extérieurs : balcons ou loggias confortables. A pied ou a vélo tout est accessible: commerces (3 min), Place du Pin et Garibaldi (5 min), écoles et campus universitaire (6 min), Vieux-Nice (8 min), plages et Promenade des Anglais (7 min à vélo). Une opportunité rare pour habiter ou investir dans un quartier central, vivant et à fort potentiel. Ne manquez pas cette adresse de caractère au cœur de la Côte d'Azur! Livraison : 2T/ 2028 Frais de notaire réduits ! 2P appartement - 3 lots- prix a partir de 390 000€ 3P appartement- 5 lots - prix a partir de 595 000€ (parking inclus) 4P appartement – 2 lots – prix a partir de 860 000€ (parking inclus)

Caractéristiques intérieur et extérieur

  • 2 pièces
  • 1 chambre
photo de l'annonce I-3553965 Appartement
photo de l'annonce I-3553965 Appartement
photo de l'annonce I-3553965 Appartement
photo de l'annonce I-3553965 Appartement

Informations sur l'annonceur

Sextant France
Contacter Olena Bazile

mobile 07 77 86 35 46

Voir toutes les annonces de ce pro

Contacter l'annonceur par e-mail

Partager cette annonce

Envoyer à un ami    Partager sur Facebook    Partager sur Twitter